Home
What is an ADU?
Portfolio
ADU Resources
Shop ADU's
Cart
More
Pre-permitted ADU Plan Library & Resource Center
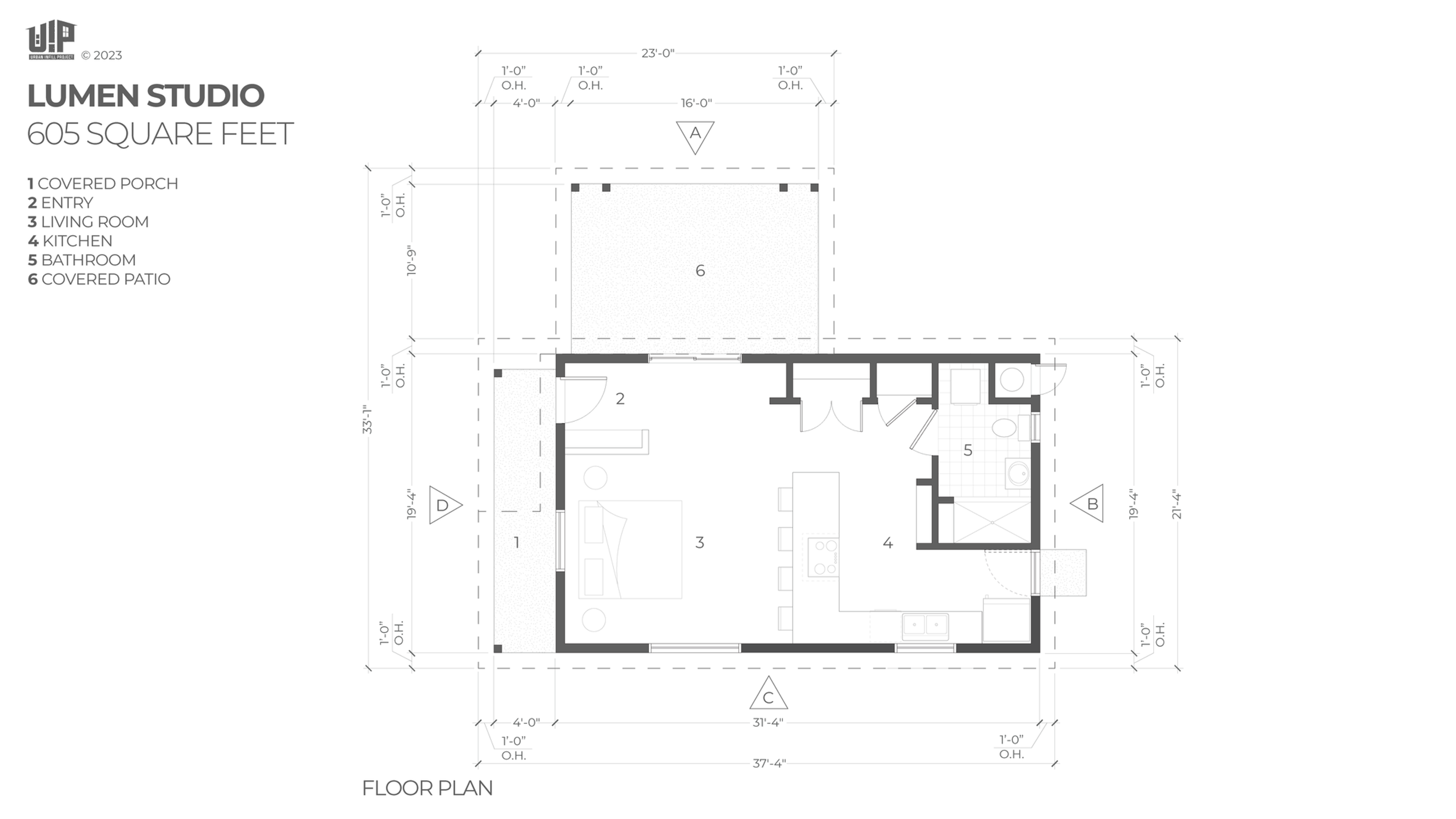
Studio